Verkocht:van Duvenvoordestraat 20, 5165 ED Waspik - Foto
Verkocht
+31

van Duvenvoordestraat 20 5165 ED Waspik

  • 4 kamers
  • 3 slaapkamers
  • 1 badkamers
  • Bouwjaar 1971
  • 409 m² perceeloppervlakte
  • 163 m² gebruiksoppervlakte
  • A Energielabel A

Beschrijving

Gelijkvloers wonen met comfort, ruimte en duurzaamheid

Energiezuinig, compleet en verrassend ruim – dat is wonen aan de Van Duvenvoordestraat 20 in Waspik. Deze vrijstaande semi-bungalow combineert de gemakken van gelijkvloers wonen met extra kamers op de verdieping. Met 20 zonnepanelen, airconditioning in vrijwel de gehele woning en energielabel A ben je verzekerd van modern wooncomfort én lage energielasten.

Begane grond – compleet wonen op één niveau
De woning beschikt over twee opritten met ruimte om meerdere auto’s op eigen terrein te parkeren (ca. drie auto’s). Via de overdekte entree kom je binnen in de lichte hal met garderobe en toegang tot de woonkamer en slaapvleugel. De ruime L-vormige woonkamer is strak afgewerkt en biedt volop daglicht.

Aan de achterzijde ligt de open keuken met duurzaam werkblad, gaskookplaat, oven, afzuigkap, koelkast, vaatwasser en voldoende kastruimte. Vanuit hier loop je via de schuifpui direct de tuin in.

Op de begane grond bevinden zich daarnaast een royale slaapkamer, een multifunctionele (slaap)kamer, een badkamer met ligbad, douche en dubbele wastafel, een praktische wasruimte en een inpandige berging. Alles wat je nodig hebt om comfortabel gelijkvloers te wonen, is hier aanwezig.

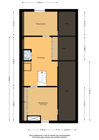
Verdieping – extra kamers en mogelijkheden
De overloop met dakraam geeft toegang tot twee slaapkamers, beide voorzien van laminaat en bergruimte onder de schuine kanten. Op deze verdieping vind je ook een tweede toilet en de HR Vaillant cv-ketel (2016). Er is ruimte om desgewenst een tweede badkamer te realiseren.

Tuin – privacy en zon
De tuin rondom de woning biedt veel privacy en is voorzien van een terras, kunstgrasgazon en een achterom. Een houten berging met elektra maakt het plaatje compleet. Hier geniet je van zonnige dagen in alle rust.

Omgeving – centraal en dorps
Waspik behoort tot de gemeente Waalwijk en heeft alle dagelijkse voorzieningen binnen handbereik, zoals een supermarkt en basisschool. De ligging is gunstig: binnen 10 minuten ben je in Waalwijk en grotere steden als Breda, ’s-Hertogenbosch en Tilburg bereik je in 20 à 25 minuten.

Technische kenmerken
• Bouwjaar: 1971
• Perceeloppervlakte: 409 m²
• Inhoud: ca. 579 m³
• Woonoppervlakte: ca. 163 m²
• Energielabel A
• 20 zonnepanelen (eigendom)
• Airconditioning in vrijwel de gehele woning
• Mogelijkheid tot volledig gelijkvloers wonen

Een compleet en duurzaam geheel
Deze woning combineert de voordelen van gelijkvloers wonen met de luxe van extra kamers en moderne voorzieningen. Duurzaam, comfortabel en centraal gelegen – een bezichtiging laat je pas echt ervaren wat deze woning bijzonder maakt.

Kaart

Kenmerken

Overdracht

Referentienummer
03537
Vraagprijs
€ 549.000,- k.k.
Status
Verkocht
Aanvaarding
In overleg
Aangeboden sinds
Donderdag 18 september 2025
Laatste wijziging
Woensdag 28 januari 2026

Bouw

Type object
Woonhuis, eengezinswoning, vrijstaande woning
Soort bouw
Bestaande bouw
Bouwperiode
1971
Dakbedekking
Dakpannen
Type dak
Zadeldak
Keurmerken
Energie prestatie advies
Isolatievormen
Dubbel glas
Volledig geïsoleerd

Oppervlaktes en inhoud

Perceeloppervlakte
409 m²
Woonoppervlakte
163 m²
Inhoud
579 m³
Oppervlakte externe bergruimte
13 m²
Oppervlakte gebouwgebonden buitenruimte
14 m²

Indeling

Aantal bouwlagen
2
Aantal kamers
4 (waarvan 3 slaapkamers)
Aantal badkamers
1 (en 2 aparte toiletten)

Locatie

Ligging
In woonwijk

Tuin

Type
Achtertuin
Hoofdtuin
Ja
Oriëntering
Oosten
Heeft een achterom
Ja
Staat
Normaal

Energieverbruik

Energielabel
A

CV ketel

CV ketel
Vaillant
Warmtebron
Gas
Bouwjaar
2016
Eigendom
Eigendom

Uitrusting

Warm water
CV-ketel
Verwarmingssysteem
Centrale verwarming
Vloerverwarming
Badkamervoorzieningen
Dubbele wastafel
Inloopdouche
Ligbad
Tuin aanwezig
Ja
Heeft schuur/berging
Ja
Heeft een dakraam
Ja
Heeft zonnepanelen
Ja

Kadastrale gegevens

Kadastrale aanduiding
Waspik G 1632
Perceeloppervlakte
409 m²
Omvang
Geheel perceel

Brochure(s) en overige bijlagen

Van Duvenvoordestraat 20, 5165 ED WASPIK (1) Download

Recent bekeken

Eerder bekeken woningen

Bekijk ons volledige aanbod