Verkocht:Mgr. Bekkersstraat 62, 5146 DV Waalwijk - Foto
Verkocht
+25

Mgr. Bekkersstraat 62 5146 DV Waalwijk

  • 4 kamers
  • 3 slaapkamers
  • 1 badkamers
  • Bouwjaar 2010
  • 108 m² perceeloppervlakte
  • 102 m² gebruiksoppervlakte
  • A+ Energielabel A+

Beschrijving

Ben jij op zoek naar een frisse, energiezuinige woning op een toplocatie?

In het jonge en populaire Landgoed Driessen staat deze instapklare tussenwoning uit 2010 te wachten op een nieuwe bewoner. Modern, praktisch én gelegen in een rustige, groene omgeving waar alle dagelijkse voorzieningen verrassend dichtbij zijn. Dankzij de 9 zonnepanelen woon je hier bovendien extra energiezuinig.

Indeling

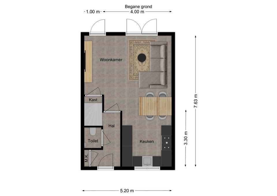
Begane grond
Je komt binnen in de hal met toilet en meterkast. Vanuit hier stap je de lichte woonkamer binnen, een fijne leefruimte met plek voor een grote eettafel en een gezellige zithoek. Aan de voorzijde bevindt zich de open keuken, voorzien van alle benodigde inbouwapparatuur en een logische, moderne opstelling. Vanuit de woonkamer heb je direct toegang tot de achtertuin.

Eerste verdieping
Op de eerste verdieping vind je twee ruime, prettig lichte slaapkamers en een complete badkamer. De badkamer is stijlvol ingericht met een royale inloopdouche, een modern wastafelmeubel en een tweede toilet helemaal klaar voor dagelijks comfort.

Tweede verdieping
De tweede verdieping biedt een ruime voorzolder met aansluitingen voor wasapparatuur en de opstelplaats van de HR-combiketel. Daarnaast vind je hier een volwaardige derde slaapkamer. Extra bergruimte is aanwezig op de praktische bergvliering boven deze verdieping.

Tuin, berging & overkapping
De achtertuin is verzorgd aangelegd en biedt volop privacy. Achter op het perceel staat een gezellige overkapping de ideale plek om het hele jaar door buiten te zitten of vrienden te ontvangen. De vrijstaande houten berging is perfect voor fietsen en extra opslag. De tuin is bereikbaar via een handige achterom.

Locatie
Landgoed Driessen is een geliefde en kindvriendelijke woonwijk met veel groen, speelplekken en een fijne leefomgeving. Scholen, winkels en sportvoorzieningen liggen op korte afstand. Dankzij de ligging nabij de A59 ben je zo in Tilburg of ’s-Hertogenbosch, en voor ontspanning zijn er mooie fiets- en wandelroutes zoals het Halve Zolenpad.

Koopgarant – extra aantrekkelijk voor starters
Deze woning wordt aangeboden via de Koopgarant-regeling, een unieke kans voor starters die betaalbaar en verantwoord willen kopen. Dankzij de lagere instapprijs wordt het financiële plaatje een stuk toegankelijker, terwijl je toch volledig het woongenot van een eigen woning ervaart. De regeling biedt daarnaast zekerheid en duidelijkheid over terugkoop en waardeverdeling. Kortom: een ideale manier om de woningmarkt binnen te stappen met minder risico en meer kansen.

Belangrijkste kenmerken:

• Verzorgde tussenwoning met tuin, berging en overkapping achter op het perceel
• Bouwjaar 2010
• Energielabel A+ - volledig geïsoleerd, uitgerust met HR++ beglazing en 9 zonnepanelen
• Koopgarant-regeling van toepassing (informatie via ons kantoor)
• Oplevering: 2 februari 2026

Kaart

Kenmerken

Overdracht

Referentienummer
03662
Vraagprijs
€ 409.500,- k.k.
Status
Verkocht
Aanvaarding
In overleg
Aangeboden sinds
Woensdag 3 december 2025
Laatste wijziging
Maandag 2 februari 2026

Bouw

Type object
Woonhuis, eengezinswoning, tussenwoning
Soort bouw
Bestaande bouw
Bouwperiode
2010
Dakbedekking
Dakpannen
Type dak
Zadeldak
Keurmerken
Energie prestatie advies
Isolatievormen
Volledig geïsoleerd

Oppervlaktes en inhoud

Perceeloppervlakte
108 m²
Woonoppervlakte
102 m²
Inhoud
355 m³
Oppervlakte externe bergruimte
7 m²

Indeling

Aantal bouwlagen
3
Aantal kamers
4 (waarvan 3 slaapkamers)
Aantal badkamers
1 (en 1 apart toilet)

Locatie

Ligging
Dichtbij openbaar vervoer
In woonwijk
Nabij school
Nabij snelweg
Vrij uitzicht

Tuin

Type
Achtertuin
Hoofdtuin
Ja
Oriëntering
West
Heeft een achterom
Ja
Staat
Normaal

Energieverbruik

Energielabel
A+

CV ketel

CV ketel
Remeha
Warmtebron
Gas
Bouwjaar
2010
Combiketel
Ja
Eigendom
Eigendom

Uitrusting

Warm water
CV-ketel
Verwarmingssysteem
Centrale verwarming
Ventilatie methode
Mechanische ventilatie
Natuurlijke ventilatie
Badkamervoorzieningen
Inloopdouche
Toilet
Wastafelmeubel
Glasvezelaansluiting aanwezig
Ja
Tuin aanwezig
Ja
Beschikt over een internetverbinding
Ja
Heeft schuur/berging
Ja
Heeft een dakraam
Ja
Heeft zonnepanelen
Ja
Heeft ventilatie
Ja

Kadastrale gegevens

Kadastrale aanduiding
Waalwijk C 2097
Perceeloppervlakte
108 m²
Omvang
Geheel perceel

Media

Video

Plattegronden

Recent bekeken

Eerder bekeken woningen

Bekijk ons volledige aanbod