Nieuw in verkoop:Veense Put 130, 4264 AL Veen - Foto
Nieuw in verkoop
+18

Veense Put 130 4264 AL Veen € 149.000,- k.k.

  • 2 kamers
  • 1 slaapkamer(s)
  • 1 badkamer
  • Bouwjaar 1980
  • 314 m² perceeloppervlakte
  • 28 m² gebruiksoppervlakte

Beschrijving

Wonen aan het water, omringd door rust en natuur, met alle dagelijkse voorzieningen binnen handbereik – dit charmante chalet aan het open vaarwater van de Veense Put in Veen biedt het beste van twee werelden. Hoewel het chalet dateert uit circa 1980, verkeert het in een goede staat en is het volledig geïsoleerd, wat zorgt voor comfortabel wonen gedurende alle seizoenen. Een plek waar je direct kunt ontspannen, met het kabbelende water als dagelijks decor.

Chalet:
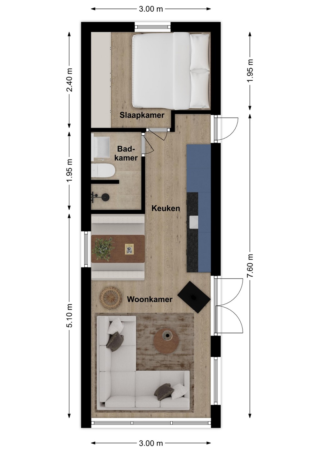
Bij binnenkomst valt direct de lichte en uitnodigende woonruimte op. Grote raampartijen bieden een panoramisch uitzicht over het water, waardoor binnen en buiten naadloos in elkaar overlopen. De dubbele tuindeuren versterken dit gevoel en geven direct toegang tot de tuin en het terras. De aanwezigheid van een pelletkachel en airconditioning zorgt voor een aangenaam binnenklimaat, ongeacht het seizoen. De open keuken is praktisch ingericht en voorzien van een 4-pits gaskookplaat, een koel-vriescombinatie en een elektrische boiler – alles wat je nodig hebt voor het dagelijkse gemak. Het chalet beschikt over een knusse slaapkamer met een vaste kast, ideaal voor het opbergen van kleding en persoonlijke spullen. De badkamer is functioneel ingedeeld en uitgerust met een douche, toilet en een wastafelmeubel.

Buitenleven:
Het buitenleven is hier werkelijk een verlengstuk van de woning. De tuin, gelegen aan zowel de noord- als westzijde, biedt meerdere plekken om te genieten van zon, schaduw en vooral het uitzicht over het water. Of je nu ’s ochtends rustig een kop koffie drinkt of ’s avonds de zon ziet ondergaan, hier kom je volledig tot rust. Een absolute meerwaarde is de eigen steiger, waar het mogelijk is om een boot aan te meren tot maar liefst 20 meter. Voor watersportliefhebbers is dit een unieke kans om direct vanuit huis het water op te gaan. Daarnaast beschikt het chalet over circa 20 m² bergruimte onder de woning, inclusief een wasmachineaansluiting – praktisch en efficiënt benut.

Locatie:
De ligging maakt dit chalet extra aantrekkelijk. De omgeving is rijk aan water en groen en biedt volop mogelijkheden voor recreatie, wandelen en varen. Tegelijkertijd zijn de dagelijkse voorzieningen dichtbij: een supermarkt bevindt zich op slechts 6 minuten fietsafstand. Bovendien ligt het chalet centraal ten opzichte van grotere plaatsen, met goede verbindingen richting Den Bosch en Gorinchem. Zo combineer je het rustige buitenleven met de bereikbaarheid van de stad – een zeldzame en waardevolle combinatie.

Kaart

Kenmerken

Overdracht

Referentienummer
03876
Vraagprijs
€ 149.000,- k.k.
Status
Nieuw in verkoop
Aanvaarding
In overleg
Aangeboden sinds
Dinsdag 14 april 2026

Bouw

Type object
Woonhuis, eengezinswoning, vrijstaande woning
Soort bouw
Bestaande bouw
Bouwperiode
1980
Dakbedekking
Bitumen
Type dak
Platdak
Isolatievormen
Volledig geïsoleerd

Oppervlaktes en inhoud

Perceeloppervlakte
314 m²
Woonoppervlakte
28 m²
Inhoud
120 m³
Oppervlakte externe bergruimte
12 m²

Indeling

Aantal bouwlagen
1
Aantal kamers
2 (waarvan 1 slaapkamer)
Aantal badkamers
1

Locatie

Ligging
Aan water
Vrij uitzicht

Tuin

Type
Tuin rondom
Staat
Normaal

Uitrusting

Verwarmingssysteem
Airconditioning
Pelletkachel
Badkamervoorzieningen
Douche
Toilet
Wastafel
Heeft airco
Ja
Tuin aanwezig
Ja
Heeft zonwering
Ja

Kadastrale gegevens

Kadastrale aanduiding
Aalburg E 4789
Perceeloppervlakte
9 m²
Omvang
Geheel perceel
Eigendomsituatie
Eigen grond
Kadastrale aanduiding
Aalburg E 1644
Perceeloppervlakte
305 m²
Omvang
Geheel perceel
Eigendomsituatie
Eigen grond

Media

Video

Plattegronden

Brochure(s) en overige bijlagen

Brochure Veense Put 130 Veen.pdf Download

Terugblikken op

Eerder bekeken woningen

Bekijk ons volledige aanbod