Verkocht:Juliana van Stolbergstraat 69, 4264 SV Veen - Foto
Verkocht
+36

Juliana van Stolbergstraat 69 4264 SV Veen

  • 5 kamers
  • 4 slaapkamers
  • 1 badkamers
  • Bouwjaar 1970
  • 171 m² perceeloppervlakte
  • 115 m² gebruiksoppervlakte
  • A Energielabel A

Beschrijving

Op zoek naar een instapklare woning waar je niet eerst maanden hoeft te klussen? Dan hebben we goed nieuws voor je! Deze sfeervolle tussenwoning (bouwjaar 1970) in het gezellige Veen is tot in de puntjes verzorgd én helemaal klaar voor de toekomst. Denk aan energielabel A, goede isolatie, een moderne afwerking en een heerlijke ligging met vrij uitzicht over de weilanden. Gooi je verhuisdozen maar achterin de auto, want hier kun je zó intrekken.

Wonen:
Bij binnenkomst voelt het direct goed. In de hal vind je een handige trapkast – ideaal voor de stofzuiger of die voorraad wc-papier die je ooit in de aanbieding kocht. Het toilet is basic, maar netjes. Loop door naar de lichte doorzonwoonkamer en je merkt meteen hoeveel ruimte en daglicht deze woning biedt. Perfect voor lange avonden op de bank of gezellige etentjes met vrienden. En voor wie extra sfeer wil: er is de mogelijkheid om een open haard te realiseren – ideaal voor knusse winteravonden. De open keuken zorgt ervoor dat je tijdens het koken gewoon mee kunt blijven kletsen. Wel zo gezellig.

Koken:
De keuken is praktisch ingericht en van alle gemakken voorzien: 5-pits gaskookplaat, afzuigkap, oven, koelkast, vaatwasser én een deur naar de tuin. Of je nu snel iets opwarmt of uitgebreid staat te koken – hier is het gewoon fijn werken. Alles wat je nodig hebt, zit er al in.

Slapen en baden:
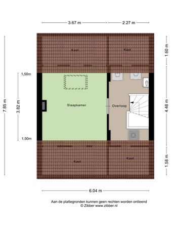
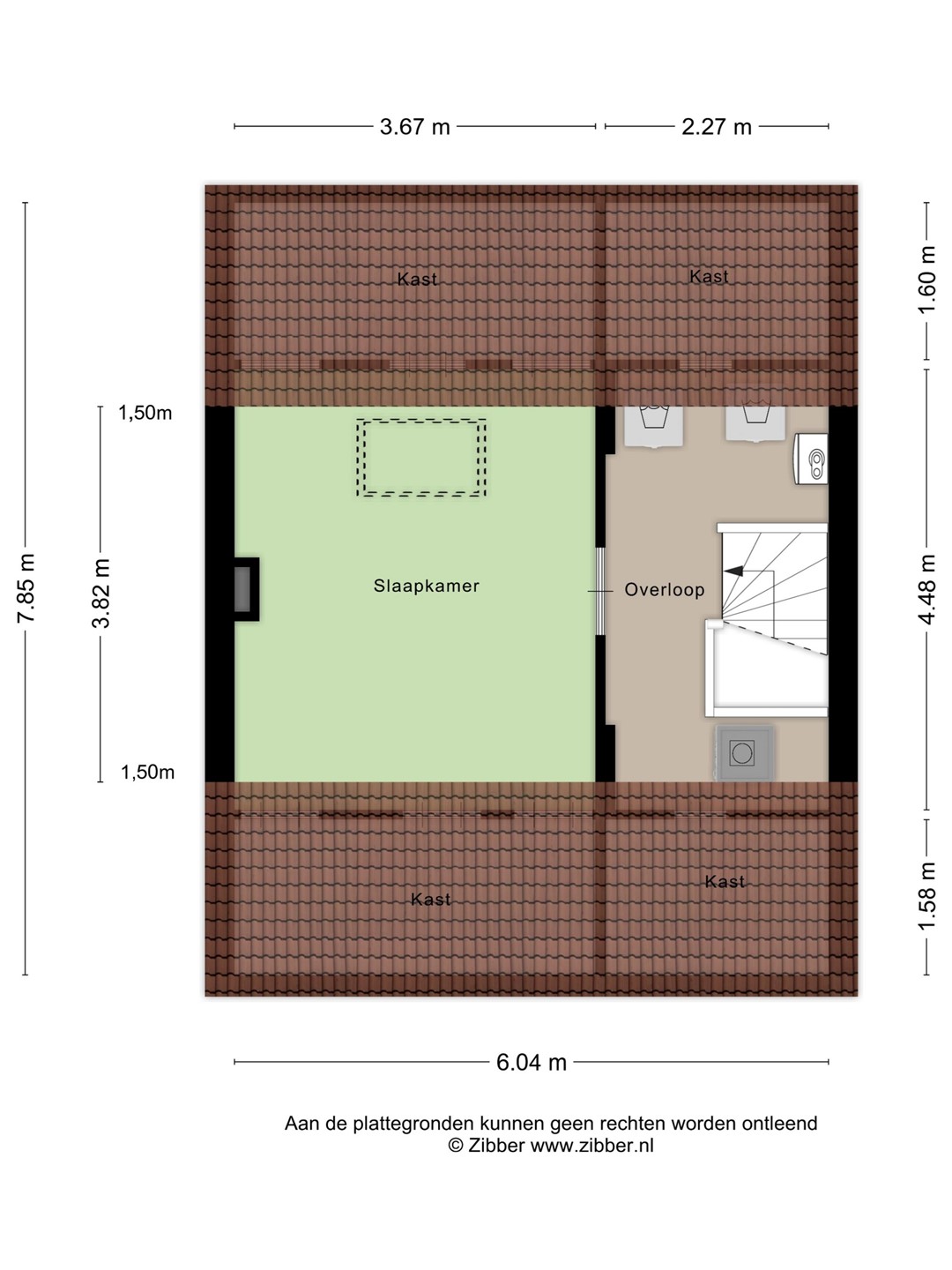
Op de eerste verdieping vind je drie ruime slaapkamers, waarvan één met airco – lekker koel in de zomer! De badkamer is verrassend ruim en heeft een ligbad, douche en een wastafelmeubel. Op zolder wacht nog een vierde slaapkamer, ideaal als logeerkamer, werkplek of chillruimte. Met het dakraam komt er lekker veel licht binnen, en achter het knieschot heb je extra opbergruimte. De overloop biedt plaats aan de wasmachine, cv-ketel (Vaillant, 2023) én nog meer opslag.

Buitenleven:
De achtertuin is echt een pareltje. Gelegen op het westen, dus volop middag- en avondzon. Achterin vind je een grote berging met elektra – handig voor fietsen, klusspullen of je hobbyprojecten. En dan die overkapping… ruim, modern en voorzien van elektra, heater en een gezellige bio-ethanol haard. Zie het als je tweede woonkamer, maar dan buiten. Hier zit je het hele jaar door goed – met een wijntje, boek of barbecue.

Locatie:
Je woont hier aan een rustige doodlopende straat met vrij uitzicht over de weilanden. Een plek waar je de vogels hoort fluiten en de kinderen nog veilig buiten spelen. Veen is een vriendelijk dorp met alles wat je nodig hebt: supermarkt, basisschool, sportclubs én volop natuur. Fiets- en wandelroutes beginnen bijna letterlijk voor je deur.

Kaart

Kenmerken

Overdracht

Referentienummer
03548
Vraagprijs
€ 365.000,- k.k.
Status
Verkocht
Aanvaarding
In overleg
Aangeboden sinds
Woensdag 1 oktober 2025
Laatste wijziging
Dinsdag 28 oktober 2025

Bouw

Type object
Woonhuis, eengezinswoning, tussenwoning
Soort bouw
Bestaande bouw
Bouwperiode
1970
Dakbedekking
Dakpannen
Type dak
Zadeldak
Isolatievormen
Dakisolatie
Dubbel glas
Muurisolatie

Oppervlaktes en inhoud

Perceeloppervlakte
171 m²
Woonoppervlakte
115 m²
Inhoud
409 m³
Oppervlakte externe bergruimte
13 m²

Indeling

Aantal bouwlagen
3
Aantal kamers
5 (waarvan 4 slaapkamers)
Aantal badkamers
1 (en 1 apart toilet)

Locatie

Ligging
In woonwijk

Tuin

Type
Achtertuin
Hoofdtuin
Ja
Oriëntering
Noord west
Heeft een achterom
Ja
Staat
Normaal
Tuin 2 - Type
Voortuin
Tuin 2 - Oriëntering
Zuidoost
Tuin 2 - Staat
Normaal

Energieverbruik

Energielabel
A

CV ketel

CV ketel
Vaillant
Warmtebron
Gas
Bouwjaar
2023
Combiketel
Ja
Eigendom
Eigendom

Uitrusting

Warm water
CV-ketel
Verwarmingssysteem
Centrale verwarming
Keukenvoorzieningen
Inbouwapparatuur
Badkamervoorzieningen
Douche
Ligbad
Wastafel
Heeft airco
Ja
Tuin aanwezig
Ja
Heeft schuur/berging
Ja
Heeft een dakraam
Ja

Kadastrale gegevens

Kadastrale aanduiding
Aalburg E 1319
Perceeloppervlakte
171 m²
Omvang
Geheel perceel
Eigendomsituatie
Eigen grond

Brochure(s) en overige bijlagen

Brochure Juliana van Stolbergstraat 69 Veen.pdf Download

Recent bekeken

Eerder bekeken woningen

Bekijk ons volledige aanbod