Verkocht:Kastanjestraat 35, 5038 PS Tilburg - Foto
Verkocht
+23

Kastanjestraat 35 5038 PS Tilburg

  • 5 kamers
  • 4 slaapkamers
  • 1 badkamers
  • Bouwjaar 1990
  • 164 m² perceeloppervlakte
  • 104 m² gebruiksoppervlakte
  • A+ Energielabel A+

Beschrijving

Sfeervolle en energielabel A+ gezinswoning met uitbouw gelegen in de gewilde Bomenbuurt met het gezellige stadscentrum op loopafstand. Onder andere voorzien van een gezellige houtkachel, geweldige badkamer, kunststof kozijnen, zonnepanelen, laadpunt voor auto en nog een tal van pluspunten. Kortom: een bezichtiging waard!

De woning is grotendeels gemoderniseerd, volledig geïsoleerd, zonnepanelen 2021, badkamer 2024, aanbouw 1997, kunststof kozijnen 2021 m.u.v. tuindeuren en (velux) dakramen, aanpassing meterkast 2021, daarnaast is de woning recent 2025 geheel buitenom geschilderd.

Begane grond:
Hal met ruim toilet en aangepaste meterkast, sfeervolle woonkamer met gezellige houtkachel en middels een deur toegang naar de trapopgang, aan de achterzijde de uitgebouwde keuken hoekopstelling en de volgende inbouwapparatuur: kookplaat met afzuigkap, combimagnetron, vaatwasser en koelkast middels openslaande tuindeuren toegang naar het terras en achtertuin.

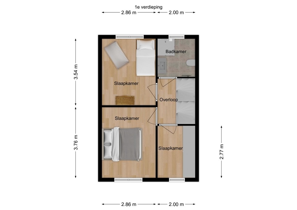
1e verdieping:
Overloop, 3 ruime slaapkamers en zeer luxe badkamer ingedeeld met ruime inloopdouche, toilet, wastafelmeubel en designradiator. De badkamer beschikt over zowel mechanische als natuurlijke ventilatie.

2de verdieping:
Ruime voorzolder/ wasruimte met dakraam, was-aansluitingen, CV-opstelling (type Remeha, bouwjaar 2019 maar pas in gebruik vanaf 2022) en 4de slaap/ werkkamer met eveneens groot dakraam. De gehele verdieping is voorzien van voldoende bergruimte achter de knieschotten.

Tuin:
De omsloten diepe achtertuin met eigen achterom is onderhoudsvriendelijk ingedeeld met sierbestrating en diversen bergingen. Achterop het perceel de originele berging (circa 2m x 3m) en de achterom poort naar de achtergelegen brandgang. Diversen gebouwen kunnen in overleg achterblijven of afgebroken worden. Tevens een fijne overkapping.

Laadpunt:
Aan de voorzijde een laadpunt vanuit de meterkast o.a. gevoed door de zonnepanelen.

Omgeving:
De Kastanjestraat ligt in de populaire Bomenbuurt, een rustige en gezellige wijk dichtbij het centrum van Tilburg. Het stadscentrum en Tilburg Centraal zijn gemakkelijk te voet of per fiets bereikbaar. Op loop- en fietsafstand vind je het Spoorpark, jouw achtertuin voor sport, ontspanning en festivals. Ook de Spoorzone en het Dwaalgebied liggen om de hoek, bruisende plekken vol creatieve hubs, co-werkplekken, koffiebars en unieke winkels.
Ook de uitvalswegen richting o.a. Breda, Eindhoven en Waalwijk zijn snel te bereiken, waardoor de ligging zeer centraal en praktisch is.

Kaart

Kenmerken

Overdracht

Referentienummer
03677
Vraagprijs
€ 409.000,- k.k.
Status
Verkocht
Aanvaarding
In overleg
Aangeboden sinds
Donderdag 11 december 2025
Laatste wijziging
Dinsdag 6 januari 2026

Bouw

Type object
Woonhuis, eengezinswoning, tussenwoning
Soort bouw
Bestaande bouw
Bouwperiode
1990
Dakbedekking
Dakpannen
Type dak
Zadeldak
Keurmerken
Energie prestatie advies
Isolatievormen
Dakisolatie
Dubbel glas
Muurisolatie
Vloerisolatie

Oppervlaktes en inhoud

Perceeloppervlakte
164 m²
Woonoppervlakte
104 m²
Inhoud
380 m³
Oppervlakte externe bergruimte
6 m²

Indeling

Aantal bouwlagen
3
Aantal kamers
5 (waarvan 4 slaapkamers)
Aantal badkamers
1 (en 1 apart toilet)

Locatie

Ligging
In centrum

Tuin

Type
Achtertuin
Hoofdtuin
Ja
Oriëntering
Noorden
Heeft een achterom
Ja
Staat
Normaal

Energieverbruik

Energielabel
A+

CV ketel

CV ketel
Remeha
Warmtebron
Gas
Bouwjaar
2019
Combiketel
Ja
Eigendom
Eigendom

Uitrusting

Warm water
CV-ketel
Verwarmingssysteem
Centrale verwarming
Houtkachel
Keukenvoorzieningen
Inbouwapparatuur
Badkamervoorzieningen
Inloopdouche
Toilet
Wastafelmeubel
Heeft een rookkanaal
Ja
Tuin aanwezig
Ja
Heeft schuur/berging
Ja
Heeft een dakraam
Ja
Heeft zonnepanelen
Ja

Kadastrale gegevens

Kadastrale aanduiding
Tilburg P 7102
Perceeloppervlakte
164 m²
Omvang
Geheel perceel
Eigendomsituatie
Eigen grond

Media

Video

Plattegronden

Brochure(s) en overige bijlagen

Kastanjestraat 35, 5038 PS TILBURG (1) Download

Recent bekeken

Eerder bekeken woningen

Bekijk ons volledige aanbod