Verkocht onder voorbehoud:Schoolstraat 26, 5161 ZD Sprang-Capelle - Foto
Verkocht onder voorbehoud
+43

Schoolstraat 26 5161 ZD Sprang-Capelle € 645.000,- k.k.

  • 9 kamers
  • 8 slaapkamers
  • 1 badkamers
  • Bouwjaar 1911
  • 1.238 m² perceeloppervlakte
  • 283 m² gebruiksoppervlakte
  • E Energielabel E

Beschrijving

Vrijstaande jaren '30 villa met ruimte, karakter en authenticiteit!

Deze prachtige vrijstaande villa uit 1932 ligt in de mooie en pittoreske historische haven van Capelle, op een perceel van ca. 1.238 m². Wat deze woning extra bijzonder maakt, is de achtertuin die grenst aan een prachtig natuurgebied. Hier kun je genieten van een weids uitzicht en de rust van de natuur, terwijl je regelmatig hertjes, ooievaars en andere wilde dieren kunt spotten. Dit natuurgebied biedt een unieke kans om te genieten van de omliggende flora en fauna, en draagt bij aan de serene sfeer rondom de woning.

Met een royale woonoppervlakte van 283m² biedt de woning veel ruimte voor een comfortabel leven. Bij binnenkomst word je verwelkomd door de unieke charme van het huis, met originele details die de tijdloze elegantie van de villa benadrukken. Van de karakteristieke tegelvloer in de hal tot de sfeervolle schouwen en plafondelementen.

De villa heeft een solide basis en biedt volop potentie, met hier en daar wat onderhoud, wat de gelegenheid biedt om het geheel naar eigen smaak te verfraaien en de villa te laten stralen in zijn volle glorie.

Ruim en licht interieur
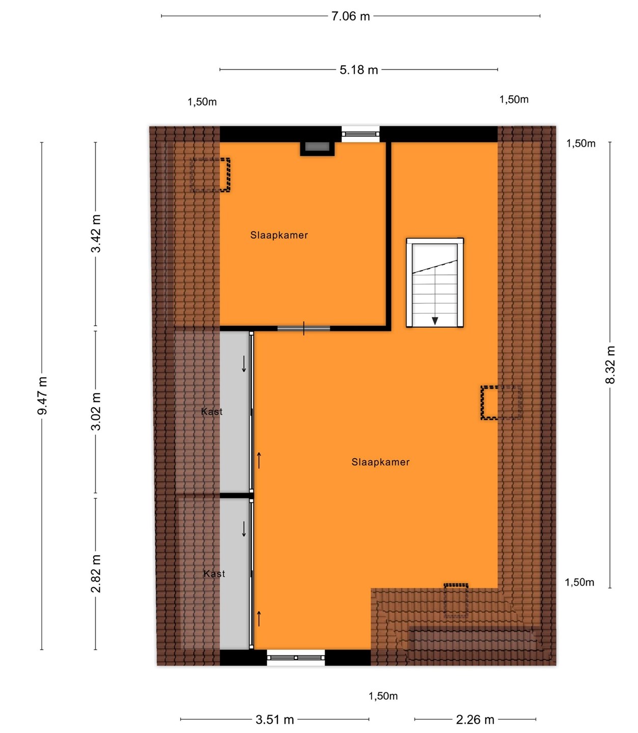
De villa beschikt over zeven ruime slaapkamers en een royale woonkamer, die dankzij de grote ramen veel lichtinval krijgt. De authentieke details zoals de plafonds met sierlijke elementen en de klassieke schouwen dragen bij aan de warme en elegante uitstraling van het huis. De ruimte is ruim opgezet, wat zorgt voor een aangename en luchtige sfeer, terwijl de klassieke elementen het huis zijn eigen karakter geven.

De keuken is momenteel in een klassieke stijl uitgevoerd, passend bij de architectuur van het huis, met een praktische indeling die de functionaliteit van de woning benadrukt. De badkamer heeft een eenvoudige, traditionele afwerking, maar biedt potentieel voor modernisering.

Werken of ontvangen in stijl
Naast de ruime woonkamer en slaapkamers biedt deze villa een aparte ruimte met een eigen entree. Deze ruimte is ideaal voor een kantoor of praktijk aan huis en is volledig gescheiden van de rest van de woning, wat zorgt voor extra privacy.

Diepe tuin met veel privacy en natuur om je heen
De grote tuin van circa 78 meter diep is een van de opvallende kenmerken van deze villa. De tuin biedt een oase van rust en privacy, omringd door groen en met voldoende ruimte voor buitenactiviteiten. Bovendien grenst het perceel aan het natuurgebied, waar je kunt genieten van het uitzicht op het omliggende landschap. Het natuurgebied trekt diverse dieren aan, zoals hertjes, ooievaars en andere wilde dieren, waardoor je elke dag kunt genieten van de rust en de schoonheid van de natuur. Dit maakt de tuin een ideale plek om in alle rust van het buitenleven te genieten.

Historische locatie en centrale ligging
Gelegen in de pittoreske en historische haven van Capelle, biedt deze villa niet alleen rust en privacy, maar ook de charme van een karakteristieke omgeving. De rustige straat en de nabijheid van het water zorgen voor een unieke sfeer die je nergens anders zult vinden. Ondanks de idyllische ligging ben je toch dicht bij alle dagelijkse voorzieningen en belangrijke uitvalswegen. Binnen enkele minuten ben je in de nabijgelegen steden Waalwijk of ’s-Hertogenbosch, en de natuur ligt op steenworp afstand, waardoor je het beste van zowel rust als bereikbaarheid hebt.

Kaart

Kenmerken

Overdracht

Referentienummer
03266
Vraagprijs
€ 645.000,- k.k.
Status
Verkocht onder voorbehoud
Aanvaarding
In overleg
Aangeboden sinds
Maandag 24 maart 2025
Laatste wijziging
Donderdag 9 oktober 2025

Bouw

Type object
Woonhuis, eengezinswoning, vrijstaande woning
Soort bouw
Bestaande bouw
Bouwperiode
1911
Dakbedekking
Dakpannen
Type dak
Zadeldak
Keurmerken
Energie prestatie advies
Isolatievormen
Dakisolatie

Oppervlaktes en inhoud

Perceeloppervlakte
1.238 m²
Woonoppervlakte
283 m²
Inhoud
1.105 m³
Oppervlakte overige inpandige ruimten
15 m²
Oppervlakte externe bergruimte
32 m²

Indeling

Aantal bouwlagen
3
Aantal kamers
9 (waarvan 8 slaapkamers)
Aantal badkamers
1 (en 1 apart toilet)

Tuin

Type
Achtertuin
Hoofdtuin
Ja
Oriëntering
West
Heeft een achterom
Ja
Staat
Normaal

Energieverbruik

Energielabel
E

CV ketel

CV ketel
Nefit Topline compact
Warmtebron
Gas
Bouwjaar
2009
Combiketel
Ja
Eigendom
Eigendom

Uitrusting

Warm water
CV-ketel
Verwarmingssysteem
Centrale verwarming
Gaskachels
Kachel
Keukenvoorzieningen
Inbouwapparatuur
Badkamervoorzieningen
Douche
Ligbad
Wasmachineaansluiting
Wastafelmeubel
Tuin aanwezig
Ja
Heeft schuur/berging
Ja
Heeft een dakraam
Ja

Kadastrale gegevens

Kadastrale aanduiding
Capelle H 575
Perceeloppervlakte
1.238 m²
Omvang
Geheel perceel
Eigendomsituatie
Eigen grond

Brochure(s) en overige bijlagen

Schoolstraat 26, 5161 ZD SPRANG-CAPELLE (1) Download

Recent bekeken

Eerder bekeken woningen

Bekijk ons volledige aanbod