Verkocht:De Klompenmaker 15, 4284 VZ Rijswijk (Nb) - Foto
Verkocht
+40

De Klompenmaker 15 4284 VZ Rijswijk (Nb)

  • 5 kamers
  • 4 slaapkamers
  • 1 badkamers
  • Bouwjaar 2017
  • 242 m² perceeloppervlakte
  • 159 m² gebruiksoppervlakte
  • A+++ Energielabel A+++

Beschrijving

Ben jij op zoek naar een ruime woning waar je zó in kunt trekken? Stop met zoeken!
Aan De Klompenmaker 15 staat een superleuke vrijstaande geschakelde woning met garage uit 2017. Helemaal instapklaar, strak afgewerkt, 4 slaapkamers én vol slimme extra’s. Denk aan energielabel A, volledig geïsoleerd, HR++ beglazing, een hybride warmtepomp en maar liefst 13 zonnepanelen. Lekker duurzaam dus, jij blij en je portemonnee ook. Radiatoren? Die vind je niet in deze woning, dit doordat de begane grond, verdieping en de slaapkamer op zolder volledig zijn voorzien van vloerverwarming. De woning staat in een jong en gezellig wijkje waar je alleen bestemmend verkeer ziet. Een heerlijk rustig plekje, waar je meteen dat gevoel van thuiskomen krijgt.

Wonen & Koken
Binnenkomen voelt meteen goed: een lichte, ruime woonkamer met ramen aan drie kanten en openslaande tuindeuren naar de tuin. De vloer? Een prachtige houtlook plavuizenvloer die de hele ruimte warm en stijlvol maakt. Alle muren zijn strak gestuukt en als kers op de taart blijft de grote vaste designkast in de woonkamer achter. Handig én mooi! De keuken is een echte eyecatcher. Diep donkerblauw, afgewerkt met een luxe composiet blad en voorzien van alles wat je nodig hebt: koel-vriescombinatie, 2 ovens, magnetron, vaatwasser, Quooker, vijfpits gaskookplaat en afzuigkap. Liever een andere kleur met behoud van de keuken? Denk eens aan een keuken wrap folie. Zo gefikst.

Slapen & Baden
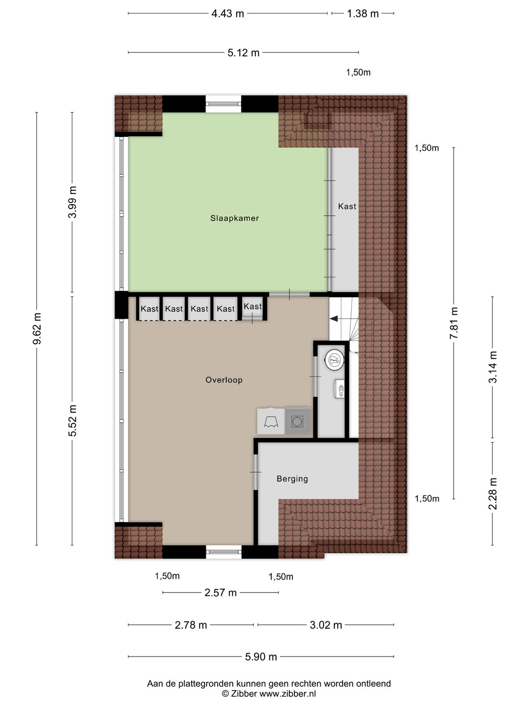
Op de eerste verdieping vind je drie slaapkamers, de badkamer en een apart toilet. De kamers zijn ruim, fris en netjes afgewerkt met doorlopende PVC vloeren. De badkamer is echt een plaatje: met een combinatie van lichte en donkere tegels, een inloopdouche, een ligbad en een modern wastafelmeubel. Alles klopt gewoon. En dan de zolder… wat een ruimte! Hier is een echte masterbedroom gemaakt met een dakkapel over de gehele lengte van de woning en een vaste kastenwand. Daarnaast vind je er nog een royale open ruimte die je zelf kunt invullen: thuiskantoor, speelruimte, hobbyplek – jij bepaalt!

Buitenleven
Ben je een buitenmens? Dan gaat je hart hier sneller van kloppen. De tuin is een mix van bestraat terras, groene borders, plantenbakken en een stukje kunstgras (nu met speelhuisje, ideaal voor kids).Het pronkstuk is de grote overkapping: compleet met houtkachel, een glazen pui en een aanrecht. Een soort tweede woonkamer in de tuin dus! En er is ook nog een handige berging met aparte deur. Naast de woning staat een garage van ca. 6 x 3 meter met roldeur en natuurlijk parkeer je gewoon op je eigen oprit.

Locatie
Rijswijk in de gemeente Altena is zo’n dorp waar het leven relaxed en gemoedelijk is. Je hebt hier een supermarkt, een bakker en wat winkels voor je dagelijkse boodschappen. Voor iets meer keus rijd je in een paar minuten naar Woudrichem. En moet je de snelweg op? Binnen no time zit je op de A27 of A59. Steden als Den Bosch, Gorinchem of Utrecht zijn allemaal binnen 30 tot 45 minuten bereikbaar. Je woont hier dus rustig en dorps, maar wel met de luxe dat de stad altijd dichtbij is.

Kaart

Kenmerken

Overdracht

Referentienummer
03561
Vraagprijs
€ 650.000,- k.k.
Status
Verkocht
Aanvaarding
In overleg
Aangeboden sinds
Vrijdag 3 oktober 2025
Laatste wijziging
Zaterdag 6 december 2025

Bouw

Type object
Woonhuis, eengezinswoning, vrijstaande woning
Soort bouw
Bestaande bouw
Bouwperiode
2017
Dakbedekking
Dakpannen
Type dak
Zadeldak
Isolatievormen
Volledig geïsoleerd

Oppervlaktes en inhoud

Perceeloppervlakte
242 m²
Woonoppervlakte
159 m²
Inhoud
660 m³
Oppervlakte overige inpandige ruimten
19 m²
Oppervlakte externe bergruimte
24 m²

Indeling

Aantal bouwlagen
3
Aantal kamers
5 (waarvan 4 slaapkamers)
Aantal badkamers
1 (en 2 aparte toiletten)

Locatie

Ligging
In woonwijk

Tuin

Type
Achtertuin
Hoofdtuin
Ja
Oriëntering
Noord-oost
Heeft een achterom
Ja
Staat
Goed onderhouden
Tuin 2 - Type
Voortuin
Tuin 2 - Oriëntering
Zuid-west
Tuin 2 - Staat
Goed onderhouden

Energieverbruik

Energielabel
A+++

CV ketel

CV ketel
Atag
Warmtebron
Gas
Bouwjaar
2017
Combiketel
Ja
Eigendom
Eigendom

Uitrusting

Warm water
CV-ketel
Verwarmingssysteem
Centrale verwarming
Vloerverwarming (gedeeltelijk)
Warmtepomp
Ventilatie methode
Mechanische ventilatie
Keukenvoorzieningen
Inbouwapparatuur
Badkamervoorzieningen
Douche
Ligbad
Wastafel
Parkeergelegenheid
Aangebouwde stenen garage
Tuin aanwezig
Ja
Heeft een garage
Ja
Heeft schuur/berging
Ja
Heeft zonnepanelen
Ja
Heeft ventilatie
Ja

Kadastrale gegevens

Kadastrale aanduiding
Woudrichem H 4012
Perceeloppervlakte
242 m²
Omvang
Geheel perceel
Eigendomsituatie
Eigen grond

Brochure(s) en overige bijlagen

Brochure De Klompenmaker 15 Rijswijk NB.pdf Download

Recent bekeken

Eerder bekeken woningen

Bekijk ons volledige aanbod