Nieuw in verkoop:Kildijk 45, 4255 TB Nieuwendijk - Foto
Nieuw in verkoop
+60

Kildijk 45 4255 TB Nieuwendijk € 925.000,- k.k.

  • 7 kamers
  • 5 slaapkamers
  • 2 badkamers
  • Bouwjaar 1968
  • 2.128 m² perceeloppervlakte
  • 220 m² gebruiksoppervlakte
  • E Energielabel E

Beschrijving

Uniek wonen: twee zelfstandige woningen op één royaal perceel van ruim 2.100 m².

Dubbele bewoning, mantelzorg, samen wonen met behoud van privacy óf wonen en werken combineren: dit bijzondere object in Nieuwendijk biedt het allemaal. Op een royaal perceel van circa 2.130 m² bevinden zich twee volwaardige, zelfstandige woningen, onderling verbonden maar volledig zelfstandig te gebruiken. Samen waar het kan, apart waar gewenst.

De oorspronkelijke bungalow is gebouwd in 1968 en in 2003 uitgebreid met een tweede woonhuis. Beide woningen beschikken over een eigen keuken, badkamer en comfortabele leefruimtes. Rondom ligt een grote, groene tuin met volop rust en privacy. Als kers op de taart is er een zeer ruime schuur van circa 180 m², wat dit object extra veelzijdig maakt.

De ligging is ideaal: aan de rand van het dorp, vrij uitzicht over de landerijen aan de voorzijde én aan de achterzijde direct grenzend aan de nieuwbouwwijk. Rustig wonen, maar met voorzieningen, speeltuin en school letterlijk om de hoek — perfect voor zowel jong als oud.

Woning 1 – oorspronkelijke woning (westzijde)
De oorspronkelijke woning biedt comfortabel en praktisch wonen. Op de begane grond bevinden zich een woonkamer, keuken en een serre met fraai uitzicht op de tuin. Daarnaast zijn er een slaapkamer, badkamer, separaat toilet, hal en bijkeuken aanwezig.
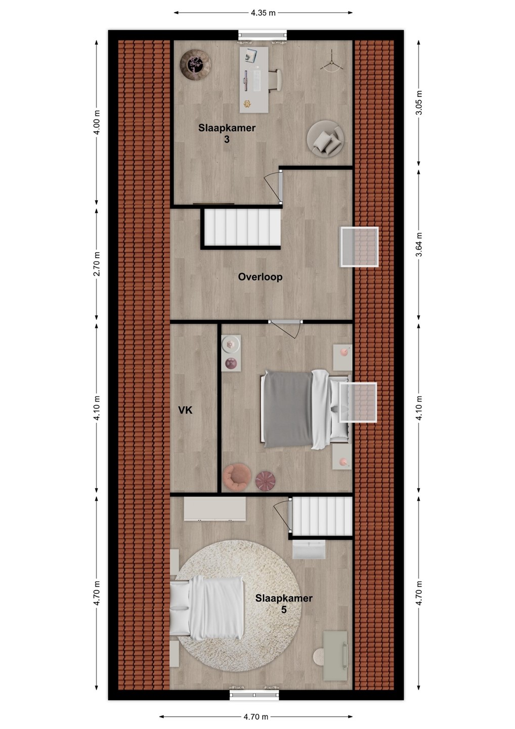
Op de verdieping zijn een overloop en twee ruime slaapkamers, ideaal als slaap-, werk- of hobbyruimte.

Woning 2 – aangebouwde woning (2003)
De tweede woning is in 2003 gerealiseerd en volledig zelfstandig ingericht. Op de begane grond vind je een woonkamer, keuken, serre, slaapkamer, badkamer, toilet en bijkeuken. Daarmee is deze woning uitstekend geschikt voor gelijkvloers wonen, bijvoorbeeld voor mantelzorg of levensloopbestendig gebruik.
Op de verdieping bevindt zich nog een extra slaapkamer, perfect als logeerkamer of kantoor aan huis.

Tuin & schuur
Rondom beide woningen ligt een ruime, groene tuin, grotendeels ingericht met gazon en diverse plantenborders. Een heerlijke plek om te ontspannen en te genieten van het buitenleven. Aan de voorzijde is een grote oprit met ruime parkeermogelijkheden op eigen terrein.

Aan de zijkant van het perceel staat een indrukwekkende schuur van circa 180 m², verdeeld in drie compartimenten. Ideaal voor werken aan huis, opslag, hobby’s, een eigen bedrijf of het stallen van meerdere voertuigen. Aan de schuur vast bevindt zich nog een grote carport men een extra berging.

Kaart

Kenmerken

Overdracht

Referentienummer
03724
Vraagprijs
€ 925.000,- k.k.
Status
Nieuw in verkoop
Aanvaarding
In overleg
Aangeboden sinds
Vrijdag 6 februari 2026

Bouw

Type object
Woonhuis, eengezinswoning, vrijstaande woning
Soort bouw
Bestaande bouw
Toegankelijkheid
Mindervaliden
Senioren
Bouwperiode
1968
Dakbedekking
Dakpannen
Type dak
Zadeldak
Isolatievormen
Dakisolatie
Grotendeels dubbel glas
Muurisolatie
Vloerisolatie

Oppervlaktes en inhoud

Perceeloppervlakte
2.128 m²
Woonoppervlakte
220 m²
Inhoud
850 m³
Oppervlakte overige inpandige ruimten
15 m²
Oppervlakte externe bergruimte
180 m²

Indeling

Aantal bouwlagen
2
Aantal kamers
7 (waarvan 5 slaapkamers)
Aantal badkamers
2 (en 1 apart toilet)

Locatie

Ligging
Aan rustige weg
In woonwijk
Vrij uitzicht

Tuin

Type
Tuin rondom
Hoofdtuin
Ja
Heeft een achterom
Ja
Staat
Normaal

Energieverbruik

Energielabel
E

CV ketel

Warmtebron
Gas
Combiketel
Ja
Eigendom
Eigendom

Uitrusting

Warm water
CV-ketel
Verwarmingssysteem
Centrale verwarming
Badkamervoorzieningen Badkamer 1
Douche
Ligbad
Wastafel
Badkamervoorzieningen Badkamer 2
Douche
Wastafel
Parkeergelegenheid
Vrijstaande houten garage
Tuin aanwezig
Ja
Heeft een garage
Ja
Heeft schuur/berging
Ja
Heeft een dakraam
Ja
Heeft een schuifpui
Ja
Heeft zonnepanelen
Ja

Kadastrale gegevens

Kadastrale aanduiding
Werkendam T 65
Perceeloppervlakte
180 m²
Omvang
Geheel perceel
Eigendomsituatie
Eigen grond
Kadastrale aanduiding
Werkendam T 3457
Perceeloppervlakte
1.631 m²
Omvang
Geheel perceel
Eigendomsituatie
Eigen grond
Kadastrale aanduiding
Werkendam T 2501
Perceeloppervlakte
156 m²
Omvang
Geheel perceel
Eigendomsituatie
Eigen grond
Kadastrale aanduiding
Werkendam T 2258
Perceeloppervlakte
161 m²
Omvang
Geheel perceel
Eigendomsituatie
Eigen grond

Brochure(s) en overige bijlagen

Brochure Kildijk 45 Nieuwendijk NB.pdf Download

Recent bekeken

Eerder bekeken woningen

Bekijk ons volledige aanbod