Onder optie:Amaliahof Bouwnummer 1, 4281 KZ Andel - Foto
Onder optie
Onder optie:Amaliahof Bouwnummer 1, 4281 KZ Andel - Foto
Onder optie:Amaliahof Bouwnummer 1, 4281 KZ Andel - Foto
Onder optie:Amaliahof Bouwnummer 1, 4281 KZ Andel - Foto
+6

Amaliahof Bouwnummer 1 4281 KZ Andel € 390.000,- v.o.n.

  • 3 kamers
  • 2 slaapkamers
  • 1 badkamer
  • Bouwjaar 2026
  • 123 m² perceeloppervlakte
  • 96 m² gebruiksoppervlakte
Amaliahoff Andel Hoffmeeswoningen

Beschrijving

Zoek je een gezellige woning in een rustige, autoluwe omgeving middenin het dorpse, gemoedelijke Andel? Met dagelijkse voorzieningen op loop- en fietsafstand, de Maas om de hoek en een gezellige dorpssfeer is Andel de ideale plek voor gezinnen, starters en iedereen die zoekt naar fijn en zorgeloos wonen.

In dit project worden negen rijwoningen aangeboden die opvallen door hun grote raampartijen en robuuste uitstraling. Het frisse metselwerk en de strakke afwerking met betonbanden dragen bij aan een modern en aantrekkelijk uiterlijk. De woningen beschikken over twee grote slaapkamers, een ruime zolder en een heerlijk lichte woonkamer. Dit zorgt voor volop leefruimte en biedt diverse mogelijkheden om de woning geheel naar eigen smaak te personaliseren.

De rijwoningen zijn bijzonder energiezuinig en uitgerust met een warmtepomp, mechanische ventilatie, vloerverwarming en topkoeling. Hierdoor kun je optimaal genieten van comfort en duurzaamheid in deze heerlijke woningen.

Kaart

Kenmerken

Overdracht

Referentienummer
03789
Vraagprijs
€ 390.000,- v.o.n.
Status
Onder optie
Aanvaarding
In overleg
Aangeboden sinds
Dinsdag 10 maart 2026
Laatste wijziging
Vrijdag 20 maart 2026

Bouw

Type object
Woonhuis, eengezinswoning, hoekwoning
Soort bouw
Nieuwbouw
Bouwperiode
2026
Dakbedekking
Dakpannen
Type dak
Zadeldak
Isolatievormen
Volledig geïsoleerd

Oppervlaktes en inhoud

Perceeloppervlakte
123 m²
Woonoppervlakte
96 m²
Inhoud
366 m³

Indeling

Aantal bouwlagen
3
Aantal kamers
3 (waarvan 2 slaapkamers)
Aantal badkamers
1 (en 1 apart toilet)

Locatie

Ligging
In woonwijk

Tuin

Type
Achtertuin
Hoofdtuin
Ja
Oriëntering
Oosten
Heeft een achterom
Ja
Staat
Dient nog te worden aangelegd.
Tuin 2 - Type
Voortuin
Tuin 2 - Oriëntering
West
Tuin 2 - Staat
Dient nog te worden aangelegd.

CV ketel

Combiketel
Ja

Uitrusting

Warm water
Elektrische boiler
Verwarmingssysteem
Vloerverwarming (gedeeltelijk)
Warmtepomp
Warmterecuperatiesysteem
Badkamervoorzieningen
Douche
Toilet
Wastafel
Tuin aanwezig
Ja
Heeft schuur/berging
Ja
Heeft een dakraam
Ja

Media

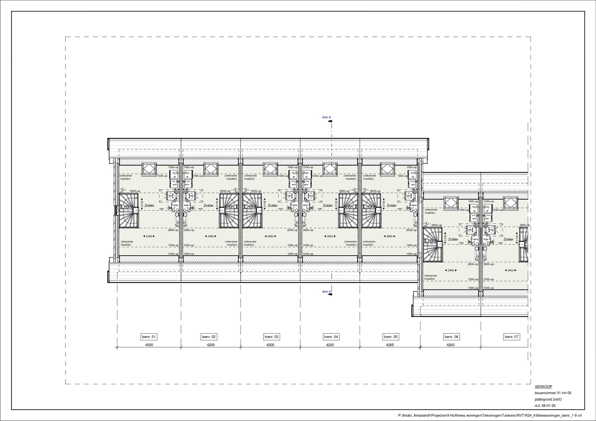
Plattegronden

Terugblikken op

Eerder bekeken woningen

Bekijk ons volledige aanbod