+38

Kerkstraat 20 5161 ED Sprang-Capelle € 575.000,- k.k.

  • Bouwjaar 1980
  • 705 m² perceeloppervlakte
  • 243 m² vloeroppervlakte
  • G Energielabel G

Beschrijving

Halfvrijstaande woning met bedrijfshal

Op een mooie en goed bereikbare locatie aan de doorgaande weg van Sprang-Capelle staat deze karakteristieke halfvrijstaande woning met ruime bedrijfshal. De woning is netjes gedateerd en heeft volop authentieke details en sfeer, waaronder glas-in-loodramen en een terrazzo vloer in de hal.

De combinatie van wonen en werken maakt dit object uniek: naast het wooncomfort biedt de grote hal volop mogelijkheden voor opslag, werkplaats of hobbyruimte.

Begane grond:
Centrale hal met trapopgang naar de verdieping, voorkamer/werkkamer, keuken met rechte opstelling voorzien van inbouwapparatuur, woonkamer met schouw, toilet, ruime bijkeuken met wasmachineaansluitingen en CV-opstelling. Aansluitend bevindt zich de badkamer met tweede toilet, douche en wastafel. Aan de achterzijde geven authentieke dubbele deuren toegang tot de tuin. Vanuit buiten is ook de inpandige bergruimte bereikbaar.

Verdieping:
Overloop met toegang tot drie slaapkamers en een inloopkast/berging. Via een loopdeur is er toegang tot het dakterras.

Bergzolder:
Bergzolder bereikbaar middels een vlizotrap.

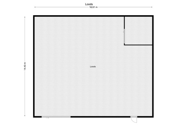
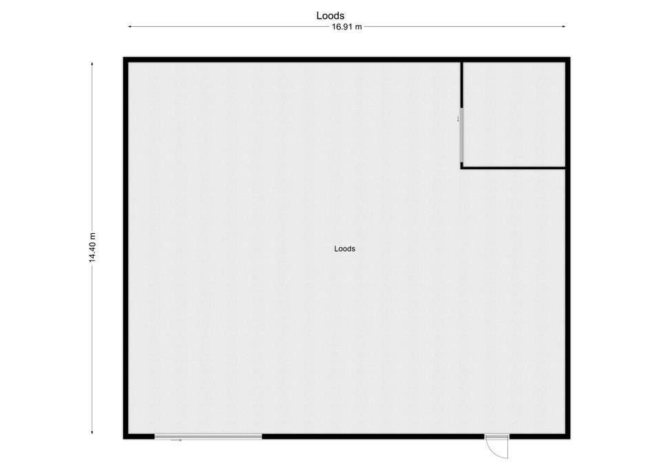
Bedrijfshal
Achter op het perceel staat de royale bedrijfshal van ca. 243 m². Deze is bereikbaar via de oprit en beschikt over een grote schuifdeur. De hal is voorzien van krachtstroom en een heater (verwarming).

Tuin
Het buitenterrein aan de voorzijde van het pand is ingericht met bestrating en hoort eveneens bij het perceel. Links van de woning bevindt zich de oprit met toegang naar de hal. De groene tuin is ingericht met verschillende terrassen, sierbestrating, gazon en plantenborders. Er is op elk moment van de dag een plek om van de zon te genieten. Achter het pand is het terrein deels verhard en is er volop ruimte voor buitenactiviteiten. Parkeren kan op eigen terrein en in de directe omgeving.

Omgeving
De woning ligt in een straat met vergelijkbare bebouwing. In de directe omgeving zijn alle dagelijkse voorzieningen aanwezig, zoals winkels, scholen en sportfaciliteiten. Ook liggen de Loonse en Drunense Duinen en de Efteling op fietsafstand. De woning heeft een gunstige ligging nabij de A59 met snelle verbinding naar Waalwijk, Tilburg en ’s-Hertogenbosch.

Bijzonderheden
• Bouwjaar woning circa 1930, bouwjaar bedrijfshal circa 1980.
• De constructie van de woning bestaat uit een betonvloer met daarop in spouw opgetrokken metselwerk en een deels pannen- en deels bitumendakbedekking. De verdiepingsvloeren zijn van hout.
• De bedrijfshal beschikt over een betonnen vloer, gemetselde muren en een bitumendak (vernieuwd in 2023).
• Energielabel woning: klasse E.
• Gezien het bouwjaar zal in de koopovereenkomst een ouderdomsclausule worden opgenomen.
• In de koopakte zal een waarborgsom/bankgarantie van 10% van de koopsom worden gesteld, te voldoen door koper binnen 6 tot 8 weken na het tot stand komen van de koopovereenkomst.
• Aanvaarding in overleg, op korte termijn mogelijk.

Kaart

Kenmerken

Overdracht

Referentienummer
02958
Vraagprijs
€ 575.000,- k.k.
Aanvaarding
In overleg
Aangeboden sinds
Donderdag 3 oktober 2024
Laatste wijziging
Donderdag 27 november 2025

Bouw

Type object
Bedrijfshal
Soort bouw
Bestaande bouw
Bouwperiode
1980

Oppervlaktes en inhoud

Perceeloppervlakte
705 m²
VVO
243 m²

Energieverbruik

Energielabel
G

Uitrusting

Uitrusting
Betonvloer

Kadastrale gegevens

Kadastrale aanduiding
Sprang C 3376
Perceeloppervlakte
455 m²
Omvang
Geheel perceel
Kadastrale aanduiding
Sprang C 1085
Perceeloppervlakte
250 m²
Omvang
Geheel perceel

Recent bekeken

Eerder bekeken woningen

Bekijk ons volledige aanbod