Verkocht:Burgemeester van der Schansstraat 22, 4281 LJ Andel - Foto
Verkocht
+7

Burgemeester van der Schansstraat 22 4281 LJ Andel

  • Bouwjaar 1954
  • 257 m² perceeloppervlakte
  • 245 m² vloeroppervlakte
  • Gemeubileerd

Beschrijving

Ben jij een ondernemer of handelaar in hart en nieren?
Dan is deze veelzijdige locatie in Andel misschien wel precies waar jij naar op zoek bent.
Het pand biedt een charmante horecagelegenheid op de begane grond, met daarboven een ruim appartement. In totaal gaat het om circa 245 m², waarvan ongeveer 190 m² bestemd is voor horeca. De ruimte wordt op dit moment gebruikt door de lokale held ‘Pietje’, die al jaren geliefd is in het dorp met zijn shoarma- en pizzazaak ‘ook wel Pietzazaak.’ Maar Pietje is klaar voor zijn welverdiende pensioen en daarmee komt dit mooie object vrij voor een nieuwe ondernemer.

Klaar voor de volgende stap? De ontwikkeling is al voorbereid.
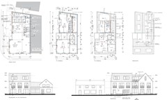
De huidige eigenaar heeft het voorwerk al grondig gedaan: de bouwtekeningen liggen klaar én de bouwvergunning is al verleend. Hierdoor is het mogelijk om het pand te transformeren tot een nieuw complex met drie appartementen en een horecaruimte. Een ideale kans voor ontwikkelaars, beleggers of ondernemers die graag bouwen en creëren.

Liever zelf de horeca in? Dat kan natuurlijk ook.
Wil je het stokje van Pietje overnemen? Dan staat hij klaar om je wegwijs te maken in het vak. De volledige inventaris blijft achter: van koelingen tot pizzaoven, van dönergrill tot kassasysteem. Zelfs de twee bezorgbusjes blijven beschikbaar, zodat jij direct van start kunt met bezorgen.

Het appartement boven de zaak
Op de verdieping bevindt zich een ruim appartement met een woonkamer, badkamer en twee slaapkamers. Het verdient een opfrisbeurt, maar biedt een geweldige kans voor starters of ondernemers die graag dicht bij hun zaak wonen.

Nieuwsgierig geworden?
Kom gerust eens kijken en ervaar zelf de mogelijkheden die dit pand te bieden heeft. Neem contact op met onze makelaars voor meer informatie, opties of een bezichtiging. Wie weet wordt dit jouw nieuwe ondernemersavontuur!

Kaart

Kenmerken

Overdracht

Referentienummer
03671
Vraagprijs
€ 539.000,- k.k.
Inrichting
Ja
Inrichting
Gemeubileerd
Status
Verkocht
Aanvaarding
In overleg
Aangeboden sinds
Dinsdag 9 december 2025
Laatste wijziging
Vrijdag 19 december 2025

Bouw

Type object
Horecapand, Café/restaurant
Soort bouw
Bestaande bouw
Bouwperiode
1954

Oppervlaktes en inhoud

Perceeloppervlakte
257 m²
VVO
245 m²
Verkoopoppervlakte
190 m²

Locatie

Ligging
In centrum

Kadastrale gegevens

Kadastrale aanduiding
Woudrichem I 739
Perceeloppervlakte
257 m²
Omvang
Geheel perceel
Eigendomsituatie
Eigen grond

Media

Foto's

Plattegronden

Terugblikken op

Eerder bekeken woningen

Bekijk ons volledige aanbod