Koop:Van Haestrechtstraat 24-0448, 5171 RC Kaatsheuvel - Foto
+12

Van Haestrechtstraat 24-0448 5171 RC Kaatsheuvel € 100.000,- k.k.

  • 3 kamers
  • 2 slaapkamers
  • 1 badkamers
  • Bouwjaar 2021
  • 318 m² perceeloppervlakte
  • 51 m² gebruiksoppervlakte

Beschrijving

Let op, dit is een biedprijs van af.
Gezellig en direct gebruiksklaar chalet – 0448 type Velthorst, EuroParcs Kaatsheuvel
Ben je toe aan een plek waar je helemaal tot rust kunt komen? Dit fraaie chalet, gelegen aan de Van Haestrechtstraat 24 op vakantiepark EuroParcs in Kaatsheuvel, biedt alles wat je nodig hebt voor een onbezorgde vakantiebeleving.

Met twee comfortabele slaapkamers, een stijlvolle keuken en een moderne badkamer is dit chalet tot in de kleinste details verzorgd. Dankzij de hoogwaardige afwerking kun je direct genieten zonder bijkomend werk.

Volledig ingericht en flexibel inzetbaar
Het chalet wordt volledig gemeubileerd geleverd, waardoor het perfect geschikt is voor eigen gebruik, verhuur, of een combinatie van beide. Via EuroParcs kun je het verhuurproces eenvoudig laten regelen, zodat je zorgeloos kunt profiteren van de huuropbrengsten.

Belangrijke kenmerken:
✔️ Volledig gemeubileerd en instapklaar
✔️ Geen eigen grond, maar de mogelijkheid om eigen grond te verwerven is beschikbaar
✔️ Permanente bewoning niet toegestaan

Interessant voor verhuur
Je kunt dit chalet inclusief lopende boekingen overnemen, wat een groot voordeel biedt. Er is geen BTW verschuldigd, omdat je de positie van de huidige eigenaar overneemt binnen de regels van de Nederlandse omzetbelasting. Alle rechten en verplichtingen worden overgedragen aan de nieuwe eigenaar.
Wil je meer weten of een bezichtiging plannen? Neem contact met ons op!

Kaart

Kenmerken

Overdracht

Referentienummer
03337
Vraagprijs
€ 100.000,- k.k.
Aanvaarding
Direct
Aangeboden sinds
Vrijdag 25 april 2025
Laatste wijziging
Woensdag 8 oktober 2025

Bouw

Type object
Woonhuis, eengezinswoning, vrijstaande woning
Soort bouw
Bestaande bouw
Bouwperiode
2021
Dakbedekking
Kunststof
Type dak
Platdak
Isolatievormen
Volledig geïsoleerd

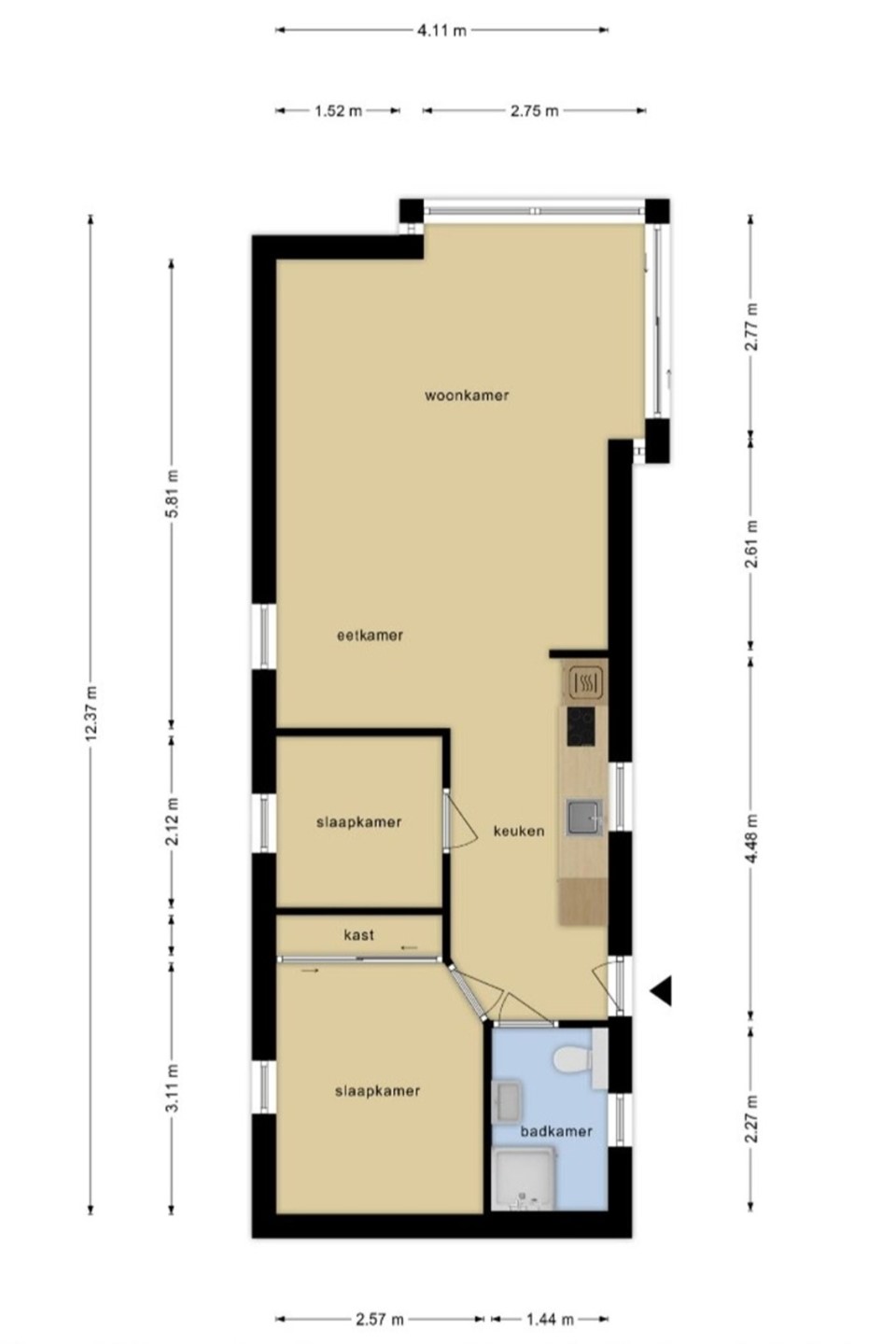
Oppervlaktes en inhoud

Perceeloppervlakte
318 m²
Woonoppervlakte
51 m²
Inhoud
124 m³

Indeling

Aantal bouwlagen
1
Aantal kamers
3 (waarvan 2 slaapkamers)
Aantal badkamers
1

Locatie

Ligging
Aan bosrand
Aan rustige weg
Beschutte ligging
In bosrijke omgeving

Tuin

Type
Tuin rondom
Hoofdtuin
Ja
Heeft een achterom
Ja
Staat
Normaal

Uitrusting

Warm water
Elektrische boiler
Verwarmingssysteem
Elektrische verwarming
Ventilatie methode
Mechanische ventilatie
Badkamervoorzieningen
Douche
Toilet
Wastafel
Tuin aanwezig
Ja
Heeft ventilatie
Ja

Kadastrale gegevens

Kadastrale aanduiding
Loon op Zand O 1345
Perceeloppervlakte
318 m²
Omvang
Geheel perceel

Media

Plattegronden

Recent bekeken

Eerder bekeken woningen

Bekijk ons volledige aanbod